• En venta 2 Casas en PH ,Barrio 4H Maldonado . Obra Avanzada

Casa

4 H, Maldonado

Venta USD 150.000

  • 2

    Dorms

  • 1

    Baños

  • Sup.

    173 m2

En Venta

ID de la propiedad : 1045

Casa en Barrio 4H – Maldonado | Obra avanzada
Precio: USD 150.000 Cada una.
Entrega estimada: marzo u abril 2026
Avance de obra: 70%

Descripción
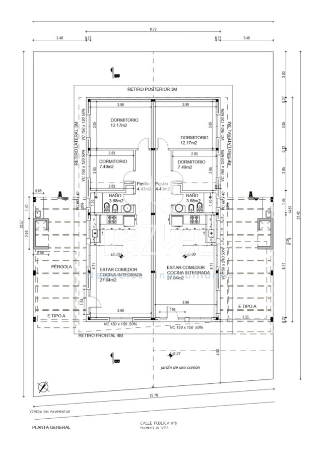
Casa en Propiedad Horizontal, construcción tradicional, ideal para vivienda permanente o inversión en una zona de crecimiento sostenido en Maldonado.

Cada casa cuenta con:
64 m² construidos
2 dormitorios
1 baño completo
Living–comedor amplio y luminoso
Cocina integrada
Salida al exterior
Parrillero
Acceso vehicular independiente

Características constructivas
Construcción en ladrillo doble
Losa de hormigón armado
Aislación térmica y acústica
Aberturas de aluminio
Pisos y revestimientos de calidad
Mesada de cuarzo o granito
Carpintería en melamínico blanco
Previsión para aires acondicionados

Información clave
Obra avanzada (70%)
Entrega llave en mano
Apta para crédito hipotecario
Servicios independientes (UTE y OSE)
Propiedad Horizontal con documentación correspondiente.

Una vez vistas, se entienden. Coordinamos visita cuando quieras.

Características

  • Barrio  4 H
  • Distancia al Mar  0
  • Terreno m2  173
  • Edificado m2  64
  • Dormitorios  2
  • Baños  1
  • Suites  0
  • Living Comedor  Si
  • Capacidad Personas  0
  • Cantidad Camas  0
  • Cantidad de Plantas  0
  • Propiedad Horizonal  Si
  • Parrillero  Pergola

Ubicación

Calle Lago Colchicó , 4 H, Maldonado

Solicita mas información

Vende o alquila tu propiedad con nosotros